+48 17 852 52 30

WYSZUKIWARKA

Typy budynku:

KONDYGNACJE:

PODDASZE:

GARAŻE:

Projekt domu Tokio III (DCP190b)

Projekt Tokio III, w odróżnieniu od Tokio, to wersja dla tych, którzy posiadają działkę z wjazdem od północy. Przestawiliśmy część wejściową z garażem, a pozostałe elementy są bez zmian. Jakby nie patrzeć, ten projekt wyróżnia się spośród innych niezależnie od wersji. Posiada to trudne do określenia „coś”, które może kryje się w prostocie bryły urozmaiconej ładnym, nowoczesnym detalem, a może w proporcjach. Niewątpliwie jednak połączona została tu ładna bryła z doskonałym układem funkcjonalnym, pozwalającym na stworzenie naprawdę ładnych wnętrz.

Parter (136.18 m2)
1. Spiżarnia 4.20 m2
2. Pokój 3.37 m2
3. Łazienka 36.19 m2
4. C.o. 7.62 m2
5. Garaż 1.49 m2
6. Taras 10.56 m2
7. Podest 2.94 m2
8. Podest 3.53 m2
9. Wiatrołap 21.41 m2
10. Komunikacja 39.07 m2
11. Pokój dzienny 3.40 m2
12. Kuchnia 2.40 m2
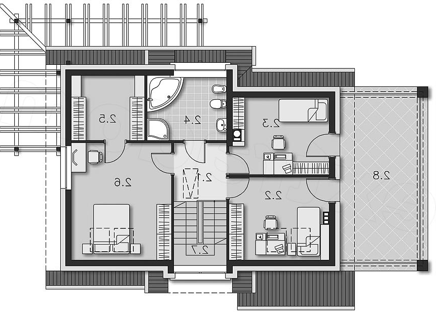
Poddasze (85.94 m2)
1. Komunikacja 5.18 m2
2. Pokój 9.81 m2
3. Pokój 11.46 m2
4. Łazienka 6.37 m2
5. Garderoba 5.06 m2
6. Pokój 15.67 m2
7. Schody 5.63 m2
8. Balkon 26.76 m2
Elewacje
Sytuacje

Podobne projekty

ADAŚ wersja C z podwójnym garażem
Elegancki, prosty i energooszczędny dom dla 4-5...
ADAŚ II wersja A bez garażu
Elegancki, prosty i energooszczędny dom dla 4-5...
ADAŚ II wersja B z pojedynczym garażem
Elegancki, prosty i energooszczędny dom dla 4-5...
AKACJA wersja A bez garażu
udynek niepodpiwniczony, przeznaczony dla rodziny...
BENITA wersja B z pojedynczym garażem
Dom zaprojektowany na planie litery L o...
BENITA wersja D z wiatą
Dom zaprojektowany na planie litery L o...
BORYS wersja A bez garażu
Niezwykle funkcjonalny, podpiwniczony dom...
EWA 2 wersja A
Dom w cenie mieszkania, niesamowicie funkcjonalny...
Powiadom mnie gdy projekt będzie w promocji
Pakiet korzyści
Pakiet korzyści przy zakupie projektu
Dane techniczne
Powierzchnia użytkowa: 129.08 m²
Powierzchnia zabudowy: 121.07 m²
Kubatura: 719 m³
Wymiary budynku: 15.10 x 8.80 m
Kąt nachylenia: 45°
Wysokość budynku: 8.66 m
Wymiary działki: 24.30 x 17.70 m