+48 17 852 52 30

WYSZUKIWARKA

Typy budynku:

KONDYGNACJE:

PODDASZE:

GARAŻE:

Projekt domu EWA 2 wersja A

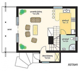
Dom w cenie mieszkania, niesamowicie funkcjonalny dom o wnętrzu dającym poczucie komfortu i wygody. Kominek w pokoju dziennym wydobywa i podkreśla ciepło rodzinnego życia. Domowy gwar może wypełnić cała przestrzeń od tarasu ogrodowego do kuchni, łączącej się z praktyczną spiżarnią. Wymiary pomieszczenia kotłowni pozwalają na zastosowanie dowolnego źródła ciepła.

Projekt dostępny również w wersji na paliwo stałe.

Parter
Poddasze
Elewacje
Przekrój
Sytuacje

Podobne projekty

Bartosz bez garażu
Dom parterowy, niepodpiwniczony dla 4-5cio...
LK&475
Dom jednorodzinny, parterowy, z poddaszem...
Nowela
Budynek niepodpiwniczony piętrowy z wbudowanym...
AGATKA wersja B dach 32 stopnie paliwo stałe
Wygodny, nowoczesny, funkcjonalny, nieduży domek...
Murator M130a Bajkowy świat - wariant I
Elegancki dom dla cztero- lub pięcioosobowej...
Promocja
D77 - Wojciech
Dom mieszkalny jednorodzinny, wolnostojący...
Eryk G1 MULTI-COMFORT
Eryk G1 MULTI-COMFORT to ekonomiczna w realizacji...
Promocja
Olszynka mazurska m
Wygodny dom z dużym zadaszonym tarasem. Duży...
Powiadom mnie gdy projekt będzie w promocji
Pakiet korzyści
Pakiet korzyści przy zakupie projektu
Dane techniczne
Powierzchnia użytkowa: 118.50 m²
Powierzchnia zabudowy: 115.40 m²
Powierzchnia dachu: 180.50 m²
Wymiary budynku: 11.30 x 10 m
Kąt nachylenia: 40°
Wysokość budynku: 8.20 m
Wymiary działki: 19.30 x 18 m