+48 17 852 52 30

WYSZUKIWARKA

Typy budynku:

KONDYGNACJE:

PODDASZE:

GARAŻE:

Projekt domu Tokio III (DCP190b)

Projekt Tokio III, w odróżnieniu od Tokio, to wersja dla tych, którzy posiadają działkę z wjazdem od północy. Przestawiliśmy część wejściową z garażem, a pozostałe elementy są bez zmian. Jakby nie patrzeć, ten projekt wyróżnia się spośród innych niezależnie od wersji. Posiada to trudne do określenia „coś”, które może kryje się w prostocie bryły urozmaiconej ładnym, nowoczesnym detalem, a może w proporcjach. Niewątpliwie jednak połączona została tu ładna bryła z doskonałym układem funkcjonalnym, pozwalającym na stworzenie naprawdę ładnych wnętrz.

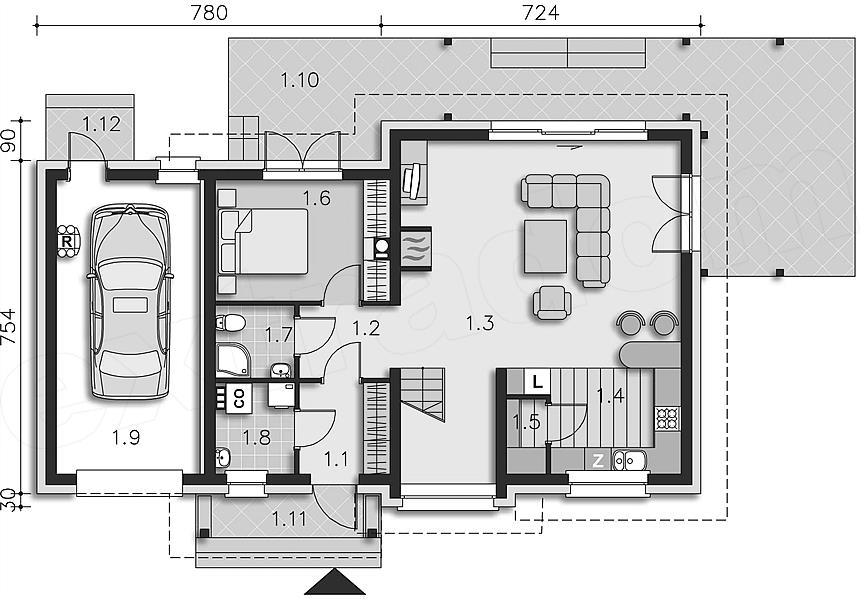
Parter (136.18 m2)
1. Spiżarnia 4.20 m2
2. Pokój 3.37 m2
3. Łazienka 36.19 m2
4. C.o. 7.62 m2
5. Garaż 1.49 m2
6. Taras 10.56 m2
7. Podest 2.94 m2
8. Podest 3.53 m2
9. Wiatrołap 21.41 m2
10. Komunikacja 39.07 m2
11. Pokój dzienny 3.40 m2
12. Kuchnia 2.40 m2
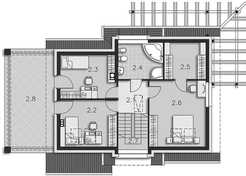
Poddasze (85.94 m2)
1. Komunikacja 5.18 m2
2. Pokój 9.81 m2
3. Pokój 11.46 m2
4. Łazienka 6.37 m2
5. Garderoba 5.06 m2
6. Pokój 15.67 m2
7. Schody 5.63 m2
8. Balkon 26.76 m2
Elewacje
Sytuacje

Podobne projekty

ADAŚ wersja A bez garażu
Elegancki, prosty i energooszczędny dom dla 4-5...
ADAŚ wersja C z podwójnym garażem
Elegancki, prosty i energooszczędny dom dla 4-5...
AKACJA wersja A bez garażu
udynek niepodpiwniczony, przeznaczony dla rodziny...
AKACJA wersja B z pojedynczym garażem
Budynek niepodpiwniczony, przeznaczony dla...
BASIA wersja A bez garażu
Interesujący dom, na planie litery L, dzięki...
BENITA wersja A bez garażu
Dom zaprojektowany na planie litery L o...
DAGMARA wersja A z pojedynczym garażem
Wygodny dom ułożony na planie litery L. Ramiona...
Promocja
EWA wersja A
Ewa - "Współczesna...
Powiadom mnie gdy projekt będzie w promocji
Pakiet korzyści
Pakiet korzyści przy zakupie projektu
Dane techniczne
Powierzchnia użytkowa: 129.08 m²
Powierzchnia zabudowy: 121.07 m²
Kubatura: 719 m³
Wymiary budynku: 15.10 x 8.80 m
Kąt nachylenia: 45°
Wysokość budynku: 8.66 m
Wymiary działki: 24.30 x 17.70 m