+48 17 852 52 30

WYSZUKIWARKA

Typy budynku:

KONDYGNACJE:

PODDASZE:

GARAŻE:

BASIA wersja A bez garażu lustro 124.5 m² (DB: 25108)

Projekt domu BASIA wersja A bez garażu

Interesujący dom, na planie litery L, dzięki czemu możliwe jest zbudowanie w ogrodzie intymnego wnętrza. Jego wnętrze jest z wszech miar praktyczne i zapewnia naprawdę wysoki komfort użytkowania.

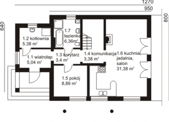
Parter
Elewacje
Przekrój
Sytuacje

Podobne projekty

BARTEK (S-GL 309)
Bartek to ciekawy architektonicznie dom z...
Pigwa Duo
Dom parterowy, z użytkowym poddaszem,...
Filadelfia (LMBL21)
Jest to nieduży, aczkolwiek bardzo wygodny i...
Chmielniki małe dw7
Drewniany wygodny dom o ciekawej architekturze....
Murator EM07 Wdzięczny (z wentylacją mechaniczną)
W tym domu wszystko jest na swoim miejscu. Ma...
Bluszcz (CE) paliwo stałe
Dom jednorodzinny z użytkowym poddaszem i...
Promocja
Wera
Klasyczny w formie, niewielki dom doskonale...
MODERN HOUSE (S-GL 1104)
Modern House to jeden z najciekawszych,...
Powiadom mnie gdy projekt będzie w promocji
Pakiet korzyści
Pakiet korzyści przy zakupie projektu
Dane techniczne
Powierzchnia użytkowa: 124.50 m²
Powierzchnia zabudowy: 162 m²
Powierzchnia dachu: 238.90 m²
Kąt nachylenia: 22°
Wysokość budynku: 5.10 m
Wymiary działki: 22.20 x 0 m